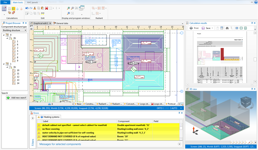
HERZ PROplan ist eine 3D-Planungssoftware, welche das einfache Planen von Fußbodenheizungs- und Radiatorsystemen und die thermische Berechnung von Gebäuden ermöglicht. Zusätzlich können Trinkwasserinstallationen geplant werden.

Die Software bietet eine Reihe innovativer Funktionen, um die Effizienz und Qualität der täglichen Arbeit eines/einer Konstrukteurs/Konstrukteurin zu verbessern. Es führt ihn/sie durch alle Phasen der Entwurfsarbeit, angefangen von Installationsplänen über hydraulische und thermische Berechnungen bis hin zum fertigen Ausdruck. Heizsysteme mit Heizkörpern oder mit Fußbodenheizungen können vollständig entworfen und inklusive Steigstränge dimensioniert werden. Am Ende der Auslegung kann eine HERZ-Produktliste mit den im System notwendigen Armaturen ausgegeben werden. Heizkörper und Heizkreisverteiler sowie die integrierten Armaturen und Ventile im Heizungssystem können aus den verfügbaren HERZ-Produktdatenbanken ausgewählt werden. HERZ PROplan ermöglicht den Entwurf kombinierter Systeme, wie Strahlungsheizsysteme zusammen mit zusätzlichen konvektiven Heizelementen.Die deutschen Version von HERZ PROplan enthält eine VDI-Heizkörper-Schnittstelle und eine VDI-Ventil-Schnittstelle.

HERZ PROplan enthält außerdem ein Modul zur Berechnung des Wärmebedarfs. Thermische Berechnungen werden unter Verwendung einer modellierten Gebäudestruktur und gemäß Wärmeverluststandard EN 12831 gemacht. Basierend auf den Ergebnissen kann eine Zentralheizungsanlage entworfen und optimiert werden.
Zur Vereinfachung der grafischen Ausgabe basiert HERZ PROplan auf 2D-Planansichten. Der Benutzer kann jedoch das gesamte Design in 3D anzeigen lassen und mithilfe dieser Ansicht auch Änderungen im Modell vornehmen.